From idea or sketch to finished production drawing
At LPM Production, we have extensive experience in creating production drawings. Whether it's about improving existing drawings or translating a completely new idea into reality, we ensure that your production drawing meets your wishes and requirements. This ensures that the final product also matches your expectations in terms of quality and accuracy.
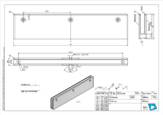
Here is an example where we transformed a rough sketch into a finalized production drawing. This avoids any errors that may result from inaccurate drawings, ensuring that as a customer, you can be completely confident that you will get exactly what you need.
Your company may be working on new components but lacks internal resources for the design process. Here, you can effectively involve us as an external partner even before production begins. We provide the technical documentation and necessary calculations you need, ensuring precise production of the components.
Together, we find the best solutions with a focus on quality and precision.
Your company may have new units or products on the drawing board but lacks its own workshop or engineering team to handle the task. Perhaps you use an external engineering firm to create technical drawings and perform necessary functional and verification calculations.
At LPM Production, we can step in to assist with both drawing, design, and production of the required components. We aim to be your collaborative partner on your projects and are happy to help from start to finish.
As an experienced made-to-order company, we specialize in CNC milling, CNC turning, and metal machining. Our state-of-the-art machinery and skilled employees ensure you a dedicated partner.
Among our products, you will also find standard items like glass holders. These are ideal for installation in glass facades and glass buildings. Below are examples of glass holders from LPM Production:




If you wish to order or learn more about our glass holders, feel free to contact our sales manager Leif Jonsen directly at email lj@lpm.dk
Our expertise in CNC milling, CNC turning, and metal machining combined with our technologically advanced machinery and experienced employees make us a preferred partner.
We manufacture both custom-made and standard components such as Dolly heads, used to test the strength of surface treatments. A Dolly head is mounted on a testing device that measures the force required to pull the head from the surface. We produce Dolly heads that fit all types of testing equipment.